• 91视频在线观看免费,91视频链接下载,黄91视频免费看,91视频成人APP下载

    91视频在线观看免费工業91视频链接下载廠家專業生產工業91视频链接下载,家用91视频链接下载,商用91视频链接下载等產品,歡迎來電谘詢定製。 公司簡介 | 研發團隊 | 網站地圖 | xml地圖
    91视频在线观看免费-精芯除濕·致淨生活環境溫度濕度係統化黄91视频免费看供應商
    全國谘詢熱線:133-6050-3273
    您的位置:91视频成人APP下载 > 知識百科 > 塗裝車間91视频链接下载:調溫91视频链接下载

    塗裝車間91视频链接下载:調溫91视频链接下载

    作者:CEO 時間:2022-12-15

    信息摘要:調溫91视频链接下载用蒸發器來給空氣降溫除濕,並回收係統的冷凝熱,彌補空氣中因為冷卻除濕時散失的熱量,是一種高效節能的除濕方式,已經廣泛應用於國防工程、人防工程、煙草及石化行業、地鐵車站、航天領域淨化工程、實驗室、電訊器材室、檔案室、食品房、製藥或

    塗裝車間91视频链接下载:調溫91视频链接下载

    塗裝車間91视频链接下载:調溫91视频链接下载

      調溫91视频链接下载用蒸發器來給空氣降溫除濕,並回收係統的冷凝熱,彌補空氣中因為冷卻除濕時散失的熱量,是一種高效節能的除濕方式,已經廣泛應用於國防工程、人防工程、煙草及石化行業、地鐵車站、航天領域淨化工程、實驗室、電訊器材室、檔案室、食品房、製藥或膠片車間、特種玻璃製造、糧食、木材等的除濕幹燥和高濕空間的除濕與溫度控製等有除濕要求的場所。

      工作原理

      本機具有降溫、升溫、除濕、通風等功能,用戶設定好參數機組自行檢測環境溫濕度,自動控製恒溫恒濕模式運行。用戶可根據當前溫濕度,或季節變化需要選任一種功能。

      機組原理:

      室內濕空氣通過機組蒸發器表麵時,因蒸發器溫度低於濕空氣的露點溫度,空氣中的水蒸汽便冷凝析出,聚積於接水盤內,由水管排出,空氣的含濕量下降。從而達到幹燥環境空氣,調節室內空氣溫度的目的

      能耗及溫濕度控

      溫度控製:溫度由微電腦控製器控製製冷係統控製調節;當環境溫度大於設定溫度加帶寬時,壓縮機開始工作降溫,降到設定值時壓縮機停止運行,風機繼續運行循環;當環境溫度小於設定溫度時加帶寬,壓縮機開始升溫,當升到設定值時壓縮機停止工作,風機繼續運行循環;

      濕度控製:濕度由微電腦控製器控製製冷係統調節。當環境濕度大於設定濕度加帶寬時,壓縮機開始工作除溫,當降到設定值時壓縮機停止工作,風機繼續運行循環;

      注:控製係統中溫度及濕度控製,溫度控製優先,經過不斷的調節,達到所需的溫濕度;

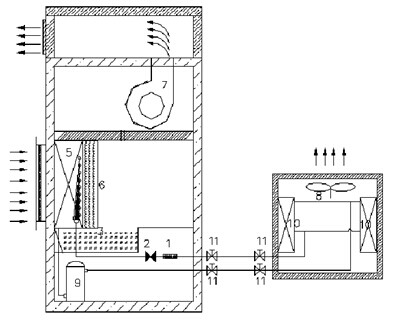
      流程圖

      調溫除濕流程圖.jpg

      1、過濾器2、膨脹閥3、接水盤4、分液頭5、蒸發器6、冷凝器7、送風機

      8、散熱風機9、壓縮機10、風冷冷凝器11、連接閥

      調溫91视频链接下载選用的主要零部件,如製冷壓縮機、過濾器等,均采用原裝進口名牌產品。機組設有多種自動保護功能。因此,與其他同類產品相比,具有效率高、結構緊湊輕便、運轉平穩、操作簡便、外型美觀、使用壽命長等特點。

      1、防腐處理

      本機組采用高強度鋼材做為框架、外形新穎、機構簡單合理,安裝方便,機組外殼表麵做噴塑防腐處理,內部如接水盤等采用防腐型材料,門板內側、銅管等零部件也覆蓋有耐腐蝕性的保溫層,有效的增加了產品的使用壽命。

      2、防塵處理

      機組進風口采用初效過濾,有效的避免了生產、使用過程中產生的細小灰塵進入機組,阻塞蒸發器縫隙,而導致除濕效果差、故障頻繁等問題。

      3、防火處理

      機組整機防火設計,電線、電氣配件等均采用高品質材料,防止機組內部電線、配件老化而引起的起火。另外,機組所有控製電器元件均采集中在配電箱內,采用弱電微電腦控製器,徹底杜絕了因控製電器故障引起的起火。

      4、控製簡便

      機組操控采用PLC編程,全中文顯示,簡單易懂、無需操作培訓、隻需設置好參數,一鍵開機。可根據用戶設定的溫度及相對濕度自動啟停、精度高、可靠性好、外形美觀。

      5、節能高效

      機組采用風量大噪音低的離心式風機,前進風或後進風上出風設計,使處理空間內更好空氣流通更順暢,除濕效果更佳。

      6、多用功能

      本機具有除濕、降溫、升溫、通風等功能,在濕度比較大的時候,采用除濕功能,在濕度較小的時候采用通風功能。這樣既能滿足濕度的要求,又能達到節能的效果

      7、進口配件

      壓縮機和主要配件均采用國際著名品牌的產品,通過製冷係統科學合理的優化設計,確保在不同壞境下正常運行。克服了國內同行業機型除濕量不足、機組頻繁啟動產品故障率高的缺點。同時也提高了產品的使用壽命。

      8、安全保護

      機組配備防爆電控箱,防爆風機,室外機不做防爆處理,控製器具有溫濕度顯示、故障顯示等功能。設有過載、短路、缺相、過熱、高壓、低壓等保護,及風機、防火閥連鎖保護。

      調溫除濕機是提供一種可以在不同室內、外溫度下對室內進行供熱、製冷和除濕以滿足室內溫濕度要求的調溫調濕方法及其設備,可以提高除濕調溫係統的性能,擴大除濕調溫係統的適用範圍。

      調溫91视频链接下载采用製冷原理,使空氣中的水蒸汽通過蒸發器表麵時冷凝析出,降低空氣的含濕量,以達到幹燥環境空氣的目的。廣泛適用於對溫濕度要求比較高的地下商場,國防工程、車間、倉庫、電訊器材庫、檔案室、文物標本室、洞庫等場所。

      1、塗裝專用91视频链接下载有機的結合了冷凍除濕轉輪除濕兩種除濕方式,是設計先進、運行經濟的四季智能型空氣處理設備。其中冷凍除濕是利用壓縮機製冷,將空氣溫度降到露點以下,排出冷凝水,使空氣濕度降低。

      2、由於水份脫附再生可利用壓縮機冷凝餘熱回收,又會使轉輪發熱,因此經過轉輪除濕後的空氣溫度會上升,使送入塗裝空間的空氣相對濕度較低。

      3、在塗裝生產工藝中主要以噴砂噴漆為主,而在這些工藝中有效解決金屬表麵氧化問題,最經濟的方法是用塗裝專用91视频链接下载控製塗裝環境的空氣相對濕度,從而延長封閉空間內金屬表麵(鋼表麵)的氧化進程。

      4、塗裝專用91视频链接下载能降低鋼材表麵露點溫度,解決大型鋼結構件表麵氧化問題,同時防止人員汗水對鋼板的重新鏽蝕,加快溶劑揮發,保證塗膜及時幹燥。

    聲明:本站部分內容和圖片來源於互聯網,經本站整理和編輯,版權歸原作者所有,本站轉載出於傳遞更多信息、交流和學習之目的,不做商用不擁有所有權,不承擔相關法律責任。若有來源標注存在錯誤或侵犯到您的權益,煩請告知網站管理員,將於第一時間整改處理。管理員郵箱:y569#qq.com(#改@)
    在線客服
    聯係方式

    熱線電話

    133-6050-3273

    上班時間

    周一到周六

    公司電話

    133-6050-3273

    二維碼
    網站地圖